Start up Office
für AbsolventInnen
Ausschreibung
16
Jan
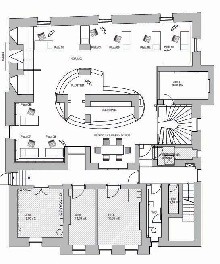
Fläche je Arbeitsplatz: ca. 9m²
Gemeinschaftsflächen (Besprechung, Leseecke, Teeküche, Lager)
m2-Anzahl für Untergeschoss: 132m²
Beitrag monatlich: € 185,- inkl. aller Kosten
Ermäßigt für HDA-Mitglieder: € 150,- inkl. aller Kosten
Die Platzvergabe erfolgt nach Absprache mit dem Vorstand des HDA.
Bewerbungen und Rückfragen ab sofort
An: Haus der Architektur
Engelgasse 3-5
8010 Graz
T: +43 316 323 500 12
F: +43 316 323 500 75
E: office@hda-graz.at
